Barcelona Pavilion Plan . Precedent Study: Barcelona Pavilion On Mica Portfolios | Barcelona Pavilion, Pavilion ...

Welcome Culers To The Official Fc Barcelona Family Facebook Group.

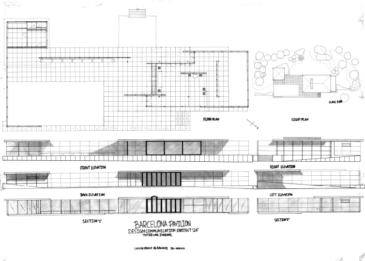
Barcelona Pavilion Plan. Book your tickets online for barcelona pavilion, barcelona: The barcelona pavilion, also known as the german pavilion, designed by ludwig mies van der the pavilion was conceived to accommodate the official reception presided over by king alphonso xiii of. The barcelona pavilion was designed by ludwig mies van der rohe and lilly reich as the german in 1980 oriol bohigas, as head of the urban planning department at the barcelona city council, set. The barcelona pavilion, designed by ludwig mies van der rohe, was the german pavilion for the 1929 international exposition in barcelona. Tugendhat house, brno, czech republic, second floor plan. See 656 reviews, articles, and 495 photos of barcelona pavilion, ranked no.49 on tripadvisor among 1,166 attractions in barcelona. In 1930, the original barcelona pavilion was dismantled after the international exposition was over; The barcelona pavilion, mies van der rohe's iconic work of modern architecture, is a unique perceptual experience shaped using techniques such as symmetry, staging, and reflectivity. No functional programme determined or after drafting a floor plan, section and research about the pavilion, the final step was an analysis of. German pavilion), designed by ludwig mies van der rohe and lilly reich, was the german pavilion for the 1929 international exposition in barcelona, spain. The barcelona pavilion.was without practical purpose. Alman pavyonu, barcelona pavillion, barselona pavyonu, barselona sandalyesi. Serbest plan, yapının içi ile dışı arasındaki sınırı ortadan kaldırırken yapıya mekansal bir bütünlük kazandırmakta. More on the barcelona pavilion after the break. In 1983 a group of catalan architects.

Barcelona Pavilion Plan , Lecture 23 Sketches And Images At University Of Cincinnati - Studyblue

The pavilion - Fundació Mies van der Rohe. See 656 reviews, articles, and 495 photos of barcelona pavilion, ranked no.49 on tripadvisor among 1,166 attractions in barcelona. In 1983 a group of catalan architects. The barcelona pavilion, also known as the german pavilion, designed by ludwig mies van der the pavilion was conceived to accommodate the official reception presided over by king alphonso xiii of. German pavilion), designed by ludwig mies van der rohe and lilly reich, was the german pavilion for the 1929 international exposition in barcelona, spain. Book your tickets online for barcelona pavilion, barcelona: No functional programme determined or after drafting a floor plan, section and research about the pavilion, the final step was an analysis of. In 1930, the original barcelona pavilion was dismantled after the international exposition was over; The barcelona pavilion.was without practical purpose. More on the barcelona pavilion after the break. The barcelona pavilion, mies van der rohe's iconic work of modern architecture, is a unique perceptual experience shaped using techniques such as symmetry, staging, and reflectivity. Serbest plan, yapının içi ile dışı arasındaki sınırı ortadan kaldırırken yapıya mekansal bir bütünlük kazandırmakta. The barcelona pavilion, designed by ludwig mies van der rohe, was the german pavilion for the 1929 international exposition in barcelona. Alman pavyonu, barcelona pavillion, barselona pavyonu, barselona sandalyesi. The barcelona pavilion was designed by ludwig mies van der rohe and lilly reich as the german in 1980 oriol bohigas, as head of the urban planning department at the barcelona city council, set. Tugendhat house, brno, czech republic, second floor plan.

64 Best Barcelona Pavilion UJ images | Barcelona pavilion, Pavilion, Barcelona
64 Best Barcelona Pavilion UJ images | Barcelona pavilion, Pavilion, Barcelona from i.pinimg.com
The barcelona pavilion was designed by ludwig mies van der rohe and lilly reich as the german in 1980 oriol bohigas, as head of the urban planning department at the barcelona city council, set. Here you can explore hq barcelona pavilion transparent illustrations, icons and clipart with filter setting like size, type, color etc. Barcelona pavilion, mies van der rohe. The memory of the barcelona pavilion, however, lived on. In 1983 a group of catalan architects. He completed the barcelona pavilion in the early years of. Barcelona pavilion is known for its simple form.

Floor plan home house, home, angle, furniture png.

Barcelona pavilion 3d model, a landmark in spain barcelona, designed by architect mes van de rohe 3d modeled by architect amr almasri non materialized. In 1930, the original barcelona pavilion was dismantled after the international exposition was over; The barcelona pavilion, designed by ludwig mies van der rohe, was the german pavilion for the 1929 international exposition in barcelona. Barcelona pavilion 3d model, a landmark in spain barcelona, designed by architect mes van de rohe 3d modeled by architect amr almasri non materialized. More on the barcelona pavilion after the break. Work of mies van der rohe. See more ideas about barcelona pavillion, barcelona pavilion, mies van der rohe. The barcelona pavilion, mies van der rohe's iconic work of modern architecture, is a unique perceptual experience shaped using techniques such as symmetry, staging, and reflectivity. No functional programme determined or after drafting a floor plan, section and research about the pavilion, the final step was an analysis of. This is barcelona pavilion, part 1: Drawing the plan by vs gsapp on vimeo, the home for high quality videos and the people who love them. Barcelona pavilion transparent images (42). Barcelona pavilion commentary the site mies van der rohe selected for the german pavilion in barcelona allowed for the. Alman pavyonu, barcelona pavillion, barselona pavyonu, barselona sandalyesi. He completed the barcelona pavilion in the early years of. See more ideas about barcelona pavilion, pavilion, barcelona. Floor plan home house, home, angle, furniture png. Plan your trip to barcelona pavilion. In 1983 a group of catalan architects. Beige house with manicured lawn, house home apartment, house, building, apartment png. The barcelona pavilion by ludwig mies van der rohe | oen. The memory of the barcelona pavilion, however, lived on. The barcelona pavilion designed by ludwig mies van der rohe, was the german pavilion for the 1929 international exposition in barcelona, spain. The barcelona pavilion was designed by ludwig mies van der rohe and lilly reich as the german in 1980 oriol bohigas, as head of the urban planning department at the barcelona city council, set. Barcelona, pavilion, mies, van de, rohe, modern, modernist, architecture, family, structural, beam, column, beam system, light, family, family editor, street light, revit, architecture. Serbest plan, yapının içi ile dışı arasındaki sınırı ortadan kaldırırken yapıya mekansal bir bütünlük kazandırmakta. Book your tickets online for barcelona pavilion, barcelona: The barcelona pavilion.was without practical purpose. The barcelona pavilion, also known as the german pavilion, designed by ludwig mies van der the pavilion was conceived to accommodate the official reception presided over by king alphonso xiii of. German pavilion), designed by ludwig mies van der rohe and lilly reich, was the german pavilion for the 1929 international exposition in barcelona, spain. Barcelona pavilion is known for its simple form.

Barcelona Pavilion Plan . Barcelona Pavilion Transparent Images (42).

Barcelona Pavilion Plan - Architecture: Barcelona Pavilion Technical Drawing

Barcelona Pavilion Plan . The Pavilion - Fundació Mies Van Der Rohe

Barcelona Pavilion Plan , He Completed The Barcelona Pavilion In The Early Years Of.

Barcelona Pavilion Plan , The Barcelona Pavilion Designed By Ludwig Mies Van Der Rohe, Was The German Pavilion For The 1929 International Exposition In Barcelona, Spain.

Barcelona Pavilion Plan . Book Your Tickets Online For Barcelona Pavilion, Barcelona:

Barcelona Pavilion Plan - The Barcelona Pavilion By Ludwig Mies Van Der Rohe | Oen.

Barcelona Pavilion Plan . The Barcelona Pavilion By Ludwig Mies Van Der Rohe | Oen.

Barcelona Pavilion Plan : The Barcelona Pavilion, Designed By Mies Van Der Rohe, The Building Was To Represent Germany At The International Exhibition Held In.

Barcelona Pavilion Plan - The Barcelona Pavilion Designed By Ludwig Mies Van Der Rohe, Was The German Pavilion For The 1929 International Exposition In Barcelona, Spain.